top of page
COLIN SHAY
Technical Director
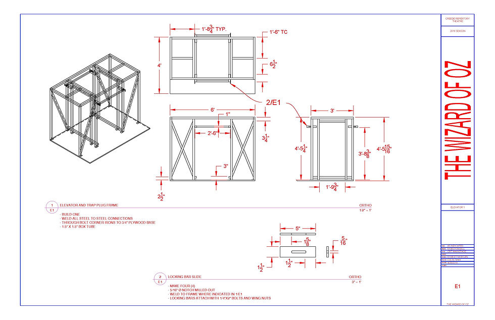
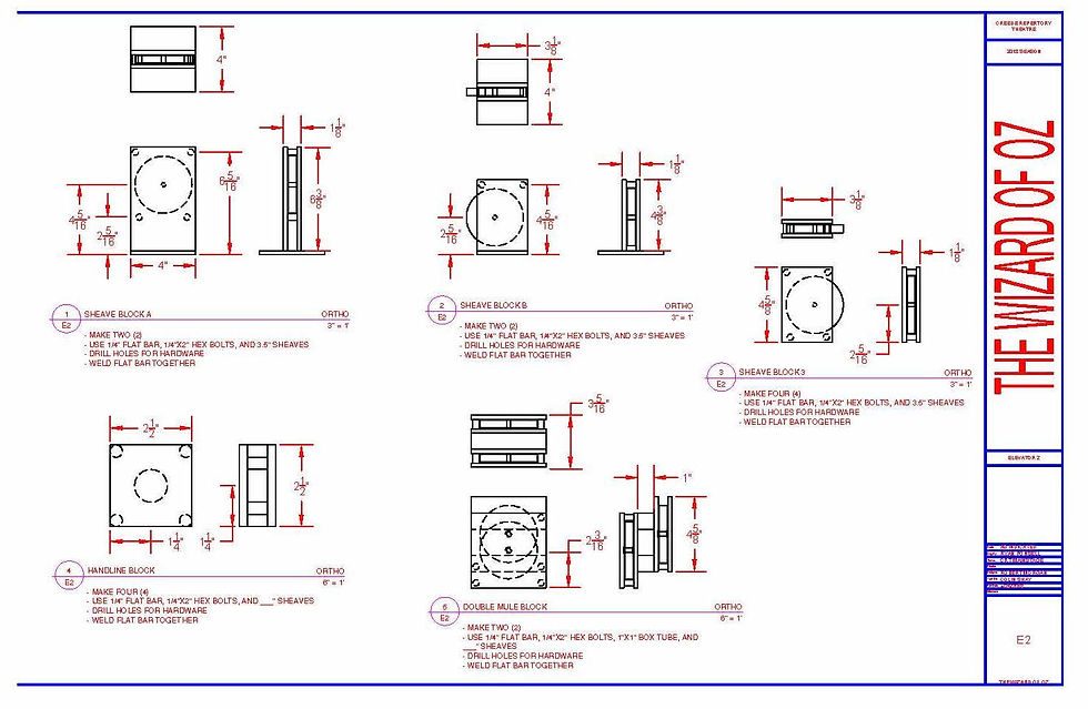
Counterweight Elevator
Built for The Wizard of Oz at Creede Repertory Theatre, this elevator uses aircraft cable and 32 Ralmark sheaves to effortlessly lower the witch during the melting scene. Roller blade wheels were used as guides to prevent any rocking motion. The elevator works well and is now permanently installed at the theatre.
Production Credits
Produced by Creede Repertory Theatre
Director: Emily Van Fleet
Scenic Designer: Robert Mark Morgan
Lighting Designer:Matthew Schlief
Costume Designer: Asa Benally
Paint Charge: Lisa Allen
Stage Manager: Devon Muko
Photos by Colin Shay
Process Photos






















Drafting












This channel is coming soon!
bottom of page